Procurement documents

Procurement procedure: Výroba dekorace pro inscenaci Tajný zázrak

Document information

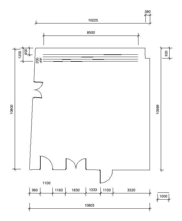
Title: Technická specifikace - výkres č. 3
Reference number in the filing service unassigned/unknown
Identifier in filing service unassigned/unknown
Description: Technická specifikace systému rovnoběžných posuvných kolejnic

Actual file version

File name: Obrázek JPEG výkres 3.JPG
Size: 20,16 KiB
Actual file version: 01.06.2012 11:21:56
MD5 hash: b688c1088a530e1784a865287adb6f36
SHA256 hash: 172d183cd81265dc013fecd8eea7d056668a58490f3bd79eb23ec74f71136c55

File history

Date Title Description Document type File name Size
V 01.06.2012 11:21:56 Technická specifikace - výkres č. 3 Technická specifikace systému rovnoběžných posuvných kolejnic procurement documents - výkres 3.JPG 20,16 KiB